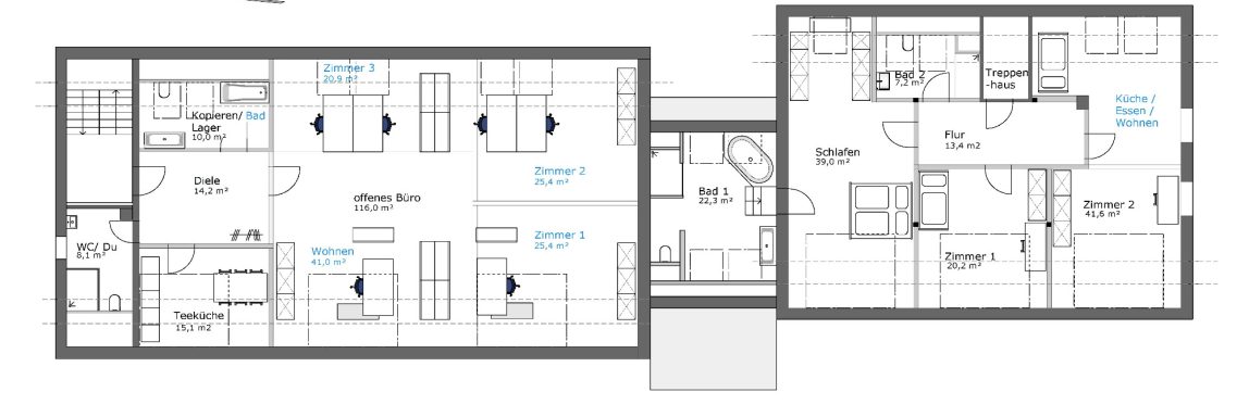
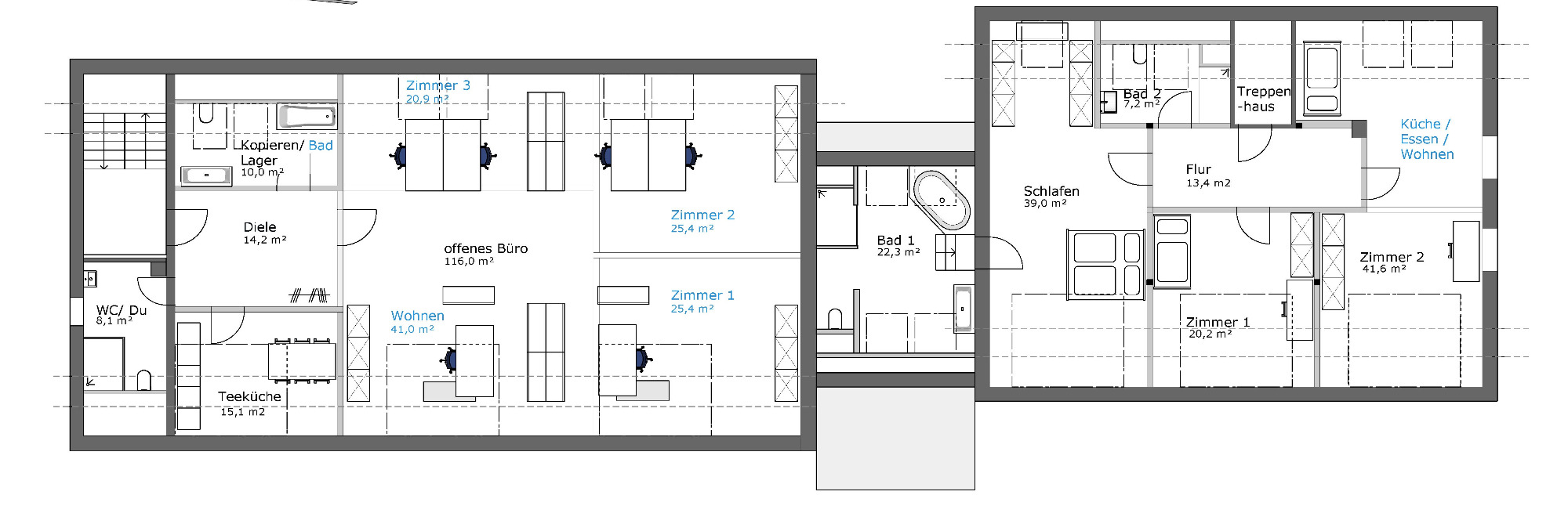
Aufstockung Wohn- und Gewerbegebäude "AdK 2"
Das Gebäudeensemble aus einem Gewerbebau, einem Zwischenbau und einem Einfamilien-Wohnhaus ist einstöckig mit nicht ausgebautem Dachgeschoss. Um dringend benötigte, zusätzliche Fläche zu schaffen, wird bei allen Gebäudeteilen das vorhandene Dach durch ein höheres, ausgebautes Dachgeschoss in Holzbauweise ersetzt. Durch die sensible Weiterentwicklung bleibt der einzigartige Charakter erhalten. Gleichzeitig präsentieren sich die Gebäude nach der Erweiterung zeitgemäß und mit einer harmonischen Gestaltung.
Bauernhaus "AdK 3"
Das um 1900 erbaute Bauernhaus wurde über die Jahrzehnte vielfach umgebaut, angebaut und überformt. Im ehemaligen landwirtschaftlichen Gebäudeteil soll eine großzügige, moderne Wohneinheit entstehen. Das Erdgeschoss steht aufgrund der Hanglage für Nebennutzungen zur Verfügung. Auch von außen soll die neue Nutzung, die neue Zeitschicht, durch die moderne Holzverschalung ablesbar sein. Der vorhandene Wohntrakt bleibt in seiner Nutzung bestehen. Die Fassade wird gestaltersich aufgewertet, indem Elemente der ursprünglichen Gestaltung wieder aufgeriffen werden.
Nebengebäude "Gs 3"
Die Satteldach-Garage mit Lagerbereich aus den 1950er Jahren war für heutige PKWs aufgrund der Größe nicht mehr nutzbar. Die Bauherren wünschten sich einen überdachten Freisitz und Lagerflächen. Die PKWs werden jetzt im vorderen Bereich des Grundstückes in einem Carport untergebracht. Entstanden ist ein schlichter Baukörper mit harmonischen Proportionen, der sich zum Wohngebäude hin durch große Holz-Schiebeelemente individuell öffnen lässt. Hier findet der neue Freisitz seinen Platz, durch die Ausrichtung nach Süden und die umschließenden Wände erwärmt er sich schnell und ist bereits zu Beginn des Frühjahrs nutzbar. Seitlich und dahinter befinden sich zwei Lagerräume mit separaten Zugängen.
Wettbewerb "Neues Wohnen in Erkheim"
Gemeinsam mit der ortsansässigen Firma Baufritz suchte die Gemeinde Erkheim in einem Ideenwettbewerb kreative Lösungen für die Stärkung der Ortsmitte in Verbindung mit neuen, zeitgemäßen Wohnangeboten. In meiner Planung entschied mich gegen den eigentlich im Wettbewerb vorgesehen Neubau, welcher Teile der "Dorfwiese" überbaut hätte. Stattdessen entstand ein exemplarischer Entwurf, der an einem innerorts stehenden Bauernhaus aufzeigt, wie die vorhandene, oft leerstehende Bausubstanz der ehemaligen Hofstellen für vielfältige Wohnangebote umgebaut werden kann. Damit konnte ich die Jury überzeugen und erhielt den 1. Preis.
Bauernhaus "RhS 12"
Um den hinteren Teil des Grundstückes einer ehemaligen Hofstelle für eine neue Wohnbebauung zu erschließen, wurde der landwirtschaftliche Gebäudeteil des Bauernhauses zurück gebaut. Dadurch konnte eine Zufahrt geschaffen werden. Der Wohnteil des Bauernhauses wurde mithilfe eines kleineren Anbaus in ein Mehrfamilienhaus mit 4 Wohnungen umgebaut. Im Anbau finden die zeitgemäßen Bäder mit den dazugehörigen Installationen Platz. Die Fenster in der Fassade des Anbaus nehmen die Proportionen der Bestandsfenster auf. In der Planung war ursprünglich vorgesehen, die Bestandsfassade ebenfalls zu verputzen und die Fenster mit Schiebeläden zu versehen.




















